KIẾN TRÚC NHÀ PHỐ 3,5 TẦNG HIỆN ĐẠI, THU HÚT- CĐT ANH THANH TẠI AN ĐỒNG, HẢI PHÒNG
Là một trong những xu hướng thiết kế kiến trúc hiện đại ngày nay, những mẫu nhà phố 3,5 tầng được xem là lựa chọn tối ưu hoàn hảo nhất, đáp ứng đầy đủ về công năng sử dụng. Nếu bạn cũng đang tìm hiểu về lối thiết kế này thì sau đây hãy cùng HOME68 chiêm ngưỡng Kiến trúc nhà phố 3,5 tầng hiện đại, thu hút- CĐT anh Thanh tại An Đồng, Hải Phòng ngay nhé!
THÔNG TIN DỰ ÁN THIẾT KẾ KIẾN TRÚC NHÀ PHỐ 3,5 TẦNG HIỆN ĐẠI
- Khách hàng: Anh Thanh
- Địa chỉ: An Đồng, Hải Phòng
- Loại hình: Thiết kế kiến trúc nhà phố
- Nhà thiết kế: HOME68
- Phong cách: Hiện đại
- Năm thực hiện: 2023
- Quy mô: 3,5 tầng
THIẾT KẾ KIẾN TRÚC NHÀ PHỐ 3,5 TẦNG ĐẸP - HIỆN ĐẠI TẠI HẢI PHÒNG
Đáp ứng nhu cầu tính thẩm mỹ kiến trúc ngoại thất của gia chủ, mẫu nhà phố 3,5 tầng được thiết kế theo phong cách hiện đại, nhẹ nhàng. Các đường nét kiến trúc khỏe khoắn, vững chắc phù hợp với xu hướng kiến trúc nhà phố tại các khu đô thị hiện nay. Mặt tiền ngôi nhà được sử dụng gam màu trắng làm chủ đạo mang đến cảm nhận nhẹ nhàng, phóng khoáng, đồng thời tạo chiều rộng cho ngôi nhà như được nới rộng thêm.

Mẫu nhà phố hiện đại 3,5 tầng tạo ấn tượng mạnh mẽ với người xem bởi những đường nét khỏe khoắn và uy nghi. Ngôi nhà được thiết kế theo phong cách hiện đại, đơn giản với trắng chủ đạo kết hợp cùng màu của vật liệu trang trí, cây cảnh tạo một không gian mặt tiền với nhiều điểm nhấn đặc trưng lôi cuốn và thu hút mọi ánh nhìn.
Kiến trúc mặt tiền nhà phố với hình khối vương vắn, kiến cố, hệ thống lan can sắt vững chãi, tất cả được bố trí khoa học và mạch lạc, tạo nên một hiệu ứng thẩm mỹ vô cùng lôi cuốn và bắt mắt người xem.

Điều quan trọng trong thiết kế mẫu nhà phố này chính là sự thông thoáng và mát mẻ. Do đó, giải pháp kiến trúc xanh đã được kiến trúc sư khéo léo đưa vào công trình. Các mảng cây xanh, bồn tiểu cảnh được bố trí tinh tế ngay trên sân thượng đã góp phần mang đến một vẻ đẹp tươi xanh và cung cấp nguồn sinh khí tốt lành từ thiên nhiên vào bên trong ngôi nhà.

Sử dụng tông màu sắc sáng làm chủ đạo, kết hợp cùng hệ thống cây xanh, những ô cửa kính cường lực trong suốt khung nhôm màu đen, vừa giúp cho ngôi nhà đón nhận được nhiều ánh sáng tự nhiên, dòng vượng khí lưu thông tốt, mà còn đem lại không gian gần gũi với thiên nhiên, nét đẹp trẻ trung hiện đại trong tổng thể.

>> Xem thêm: Thiết kế kiến trúc nhà phố 3,5 tầng hiện đại- CĐT anh Hải tại Hải Phòng
THIẾT KẾ CÔNG NĂNG CHO NHÀ PHỐ HIỆN ĐẠI 3,5 TẦNG ĐẸP, TIỆN NGHI
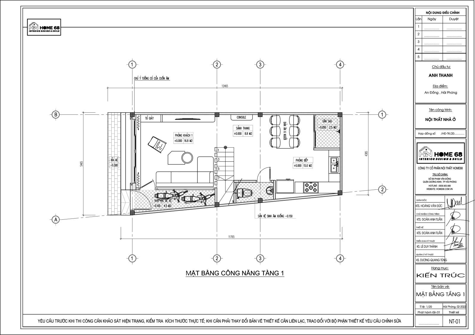
Mặt bằng công tầng 1 nhà phố 3,5 tầng được kiến trúc sư HOME68 bố trí bao gồm 1 phòng khách, 1 phòng bếp và ăn, nhà vệ sinh chung.
Từ ngoài tiến vào trong nhà là không gian nội thất phòng khách bố trí bộ bàn ghế sofa êm ái, kệ tủ tivi, kết hợp cùng nhiều ô cửa kính có rèm che giúp gia chủ có thể chủ động trong việc lấy sáng và gió. Sát bên phòng khách là nhà vệ sinh chung cùng cầu thang bộ, đặt trung tâm nhà, đảm bảo sự thuận tiện trong quá trình di chuyển. Cuối nhà là khu vực bếp, ăn với các vật dụng cơ bản, vừa đáp ứng nhu cầu sử dụng, vừa tiết kiệm không gian.

Công năng tầng 2 của mẫu nhà phố hiện đại 3,5 tầng được bố trí 1 phòng ngủ, 1 phòng khách phụ, có lối ra ban công trước mặt tiền, sát bên là phòng vệ sinh chung.

Mặt bằng tầng 3 của nhà phố hiện đại bao gồm 2 phòng ngủ, có bàn trang điểm và tủ kệ đồ. Cùng với đó là thiết kế nhà vệ sinh chung đặt giữa tạo sự tiện lợi và tiện nghi

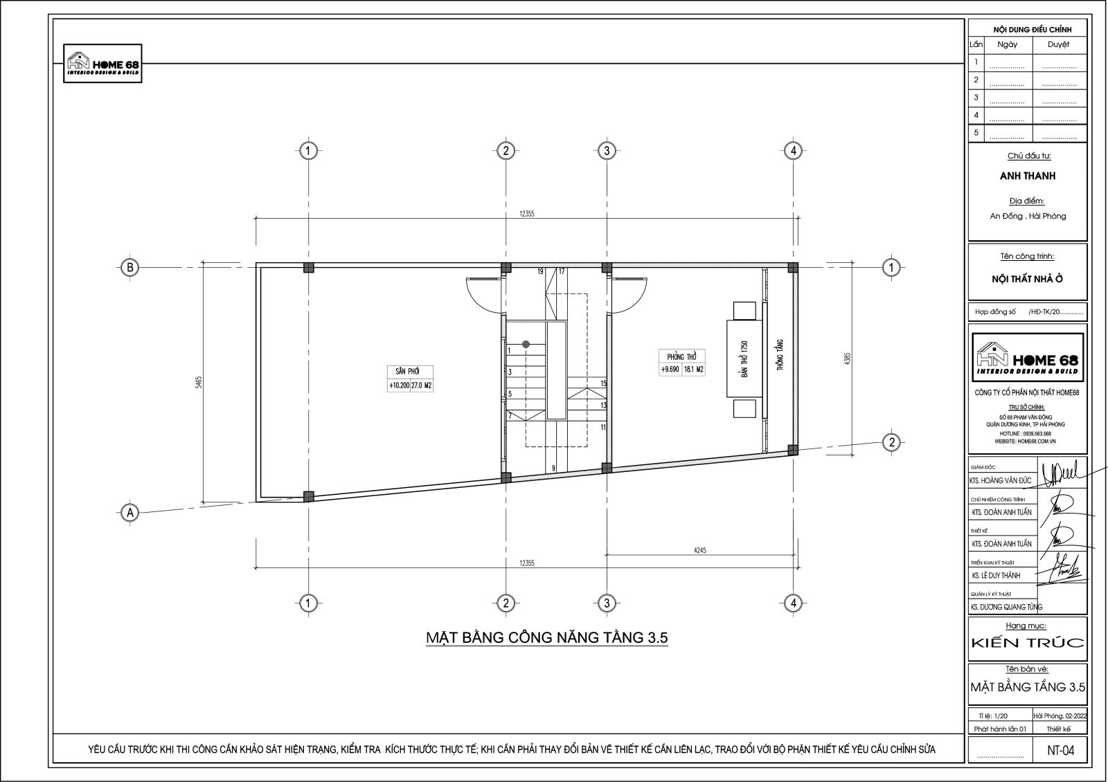
Công năng tầng 3,5 bao gồm 1 phòng thờ thiết kế tinh tế, đảm bảo cho sự lưu thông khi cũng như lấy sáng tự nhiên cho khu vực nơi đây, vừa thoáng vừa thể hiện sự tôn kính, trang nghiêm của con cháu dành cho ông bà. Sân thương trước dùng để sử dụng làm sân phơi.

Tầng mái thiết kế thoáng với không gian sân thượng với tiểu cảnh và bàn ghế ngồi thư giãn, một không gian lý tưởng để xua tan đi những mệt nhọc trong ngày làm việc. Bên trong bố trí 1 sân phơi.

Mẫu thiết kế nhà phố hiện đại 3,5 tầng với phối cảnh vô cùng tinh tế và đẹp mắt, cùng mặt bằng công năng bố trí khoa học và logic, sẽ là một trong những phương án khả thi dành cho bạn tham khảo. Nếu các bạn muốn biết thêm chi tiết về mẫu nhà phố đẹp này, cũng như phương án thiết kế cho khu đất của mình, hãy liên hệ đến Nội Thất Hải Phòng để được kiến trúc sư hỗ trợ tư vấn một cách rõ ràng và cụ thể nhất nhé!
CÔNG TY CỔ PHẦN NỘI THẤT HOME 68
Công Ty Cổ Phần Nội Thất HOME 68 chuyên thiết kế, thi công nội thất, tủ bếp, xây nhà trọn gói. Chúng tôi cam kết chất lượng tốt nhất, giá tối ưu nhất