MÔ TẢ SẢN PHẨM
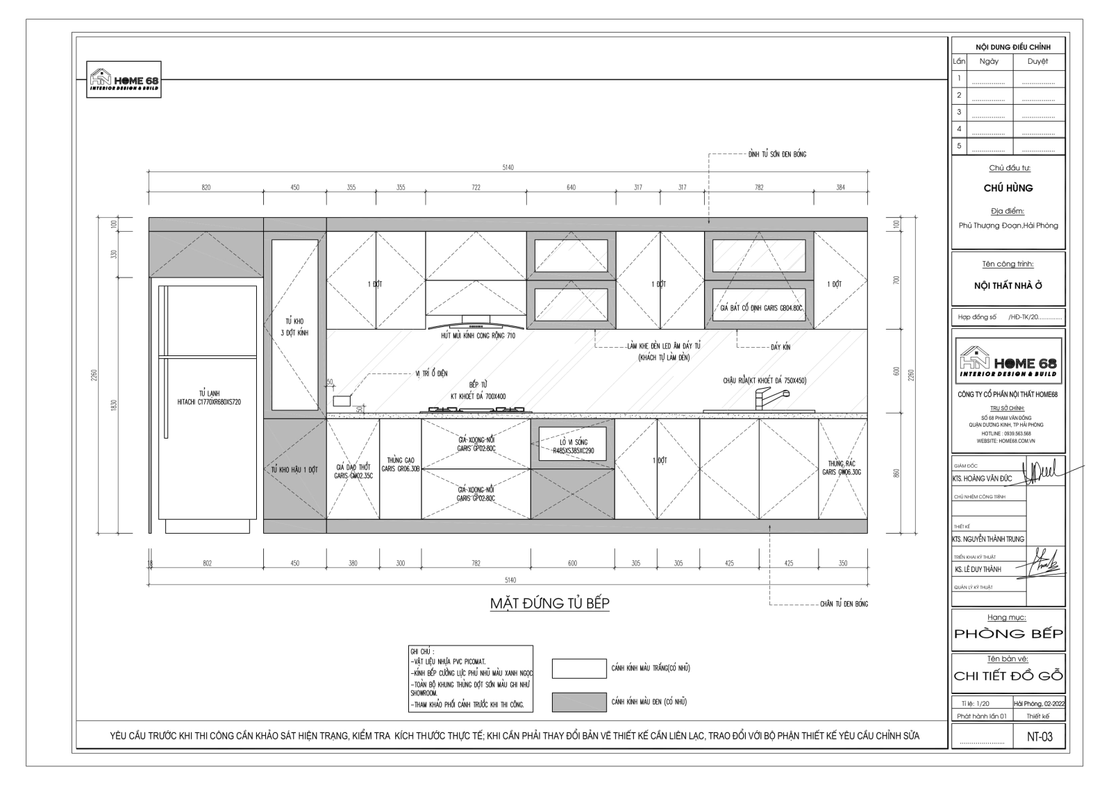
Tủ bếp cánh kính cường lực phủ nhũ nhà chú Hùng tại Phủ Thượng Đoạn, Hải Phòng
- Dự án: Phòng bếp
- Phong cách: hiện đại
- Kiểu dáng: Tủ bếp hình chữ I
- Vật liệu: Nhựa Picomat, kính bếp, cánh kính cường lực phủ nhũ sang trọng
- Thiết bị: Bosch
- Phụ kiện: Cariny
- Thiết kế âm tủ các thiết bị như lò vi sóng, lò nướng mặt âm, hút mùi cho căn bếp thêm hiện đại.
- Thiết kế màu sắc hài hòa, bắt mắt, màu trắng- ghi đối lập tạo cảm giác cân bằng cho căn bếp
- Một chiếc tủ bếp có đầy đủ công năng và tính thẩm mỹ
Tủ bếp cánh kính cường lực phủ nhũ nhà chú Hùng tại Phủ Thượng Đoạn, Hải Phòng mang đến một không gian sang trọng nhưng không kém phần trẻ trung, năng động giúp tận hưởng những giây phút tuyệt vời nhất. Sự kết hợp về màu sắc đối lập ghi - trắng hiện đại và thiết kế tinh tế, hài hòa với tổng thể. Bố trí công năng hoàn hảo, khoa học, thông minh mang đến sự tiện nghi cao cho gia đình anh Hùng sử dụng.
Căn bếp nhà chú Hùng có diện tích khá thoải mái, không gian thoáng, nối liền với không gian khác trong ngôi nhà. Với mỗi không gian bếp khác nhau cần có những thiết kế phù hợp nhất. Các KTS HOME68 đã tận dụng chiều dài căn bếp để thiết kế cho gia đình chị một chiếc tủ bếp hình chữ I. Kiểu tủ bếp này sẽ tiết kiệm tối đa chiều dài của căn bếp kể cả trong những góc khuất khó dùng nhất.

Tủ bếp cánh kính cường lực phủ nhũ nhà chú Hùng tại Phủ Thượng Đoạn, Hải Phòng
Tủ bếp trên: Mặt cánh tủ bếp trên được làm bằng chất liệu kính cường lực. Có độ cứng và độ bền cao, phủ bên ngoài là một lớp nhủ sang trọng, bề mặt sáng bóng hiện đại, dễ dàng lau chùi, chống nước tốt.
Tủ bếp dưới: Mặt cánh tủ bếp dưới cũng giống như tủ bếp trên là kính cường lực phủ nhũ. Hệ tủ đều được sử dụng chất liệu nhựa PVC Picomat có độ cứng rất cao, chịu được khối lượng lớn, va đập mạnh, không gỉ sét, ăn mòn khi tiếp xúc nhiều với nước và hóa chất tẩy rửa. Toàn bộ khung thùng được sơn màu ghi đơn giản, thanh lịch.

Mẫu tủ bếp cánh kính cường lực đẹp, sang trọng tại Hải Phòng
Tủ bếp nhà chú Hùng là sự kết hợp ăn ý và hài hòa giữa 2 mã màu ghi trắng. Sự đối lập này thực chất lại đem đến sự ấn tượng cho cả căn tủ bếp. Đặc biệt hơn nó cũng phù hợp với thiết kế chung của cả ngôi nhà.
Việc bố trí từng khu vực tủ bếp là rất quan trọng, bố trí thế nào phải vừa phù hợp với mục đích sử dụng, phát huy được hết công năng của tủ bếp, vừa đảm bảo yếu tố về mặt phong thủy. Ngoài cùng bên trái là tủ kho nhiều tầng. Với tủ kho này, gia đình sẽ có không gian rộng thoải mái để cất đồ dùng rất gọn gàng. Bên cạnh tủ kho là nơi đặt giá để dao thót và thùng gạo thông minh. Tiếp theo là vị trí đặt bếp nấu ăn, bên trên có hệ thống máy hút mùi và dưới có giá đựng xoong nồi 2 tầng kèm khay hứng nước tiện lợi.

HOME68 thiết kế, thi công tủ bếp cánh kính cường lực đẹp, thu hút
>>Xem thêm: Tủ bếp cánh kính viền hợp kim nhôm nhà chị Thúy tại Hải An, Hải Phòng
CÔNG TY CỔ PHẦN NỘI THẤT HOME 68
Công Ty Cổ Phần Nội Thất HOME 68 chuyên thiết kế, thi công nội thất, tủ bếp, xây nhà trọn gói. Chúng tôi cam kết chất lượng tốt nhất, giá tối ưu nhất

