MÔ TẢ SẢN PHẨM
Tủ bếp nhựa PVC Picomat tân cổ điển nhà chị Huyền tại Đồi Rồng, Đồ Sơn
- Dự án: Phòng bếp
- Phong cách: tân cổ điển
- Kiểu dáng: Tủ bếp hình chữ L
- Vật liệu: Nhựa PVC Picomat
- Phụ kiện: Blumk, Hefele, Cariny, Garis
- Thiết bị bếp: Bosch, Malloca
- Thiết kế tủ bếp sát trần giúp tăng không gian để đồ.
- Thiết kế âm tủ các thiết bị như lò vi sóng, lò nướng mặt âm, hút mùi cho căn bếp thêm hiện đại.
- Thiết kế màu sắc trắng- ghi sang trọng, nhẹ nhàng tạo nên không gian phòng bếp đẳng cấp, tinh tế
- Một chiếc tủ bếp có đầy đủ công năng và tính thẩm mỹ
Mẫu tủ bếp nhà chị Huyền tại Đồi Rồng, Đồ Sơn được làm từ nhựa PVC Picomat có khả năng chịu nhiệt, chịu lực va đập tốt. Chống ẩm và chịu nước hoàn hảo, phù hợp với các môi trường ẩm ướt như nhà bếp.
Tủ bếp nhựa PVC Picomat tân cổ điển nhà chị Huyền tại Đồi Rồng, Đồ Sơn được thiết kế theo dạng chữ L tiện ích. Nhằm tận dụng tối đa không gian, mang đến sự hài hòa cho cả căn phòng. Tone màu ghi- trắng nhẹ nhàng đã tạo ra sự tươi trẻ cho không gian này. Không những thế, gia chủ còn sử dụng các thiết bị thông minh cho không gian nhà bếp, nhằm mang lại sự tiện ích trong quá trình nấu nướng.

Tủ bếp nhựa PVC Picomat tân cổ điển nhà chị Huyền tại Đồi Rồng, Đồ Sơn
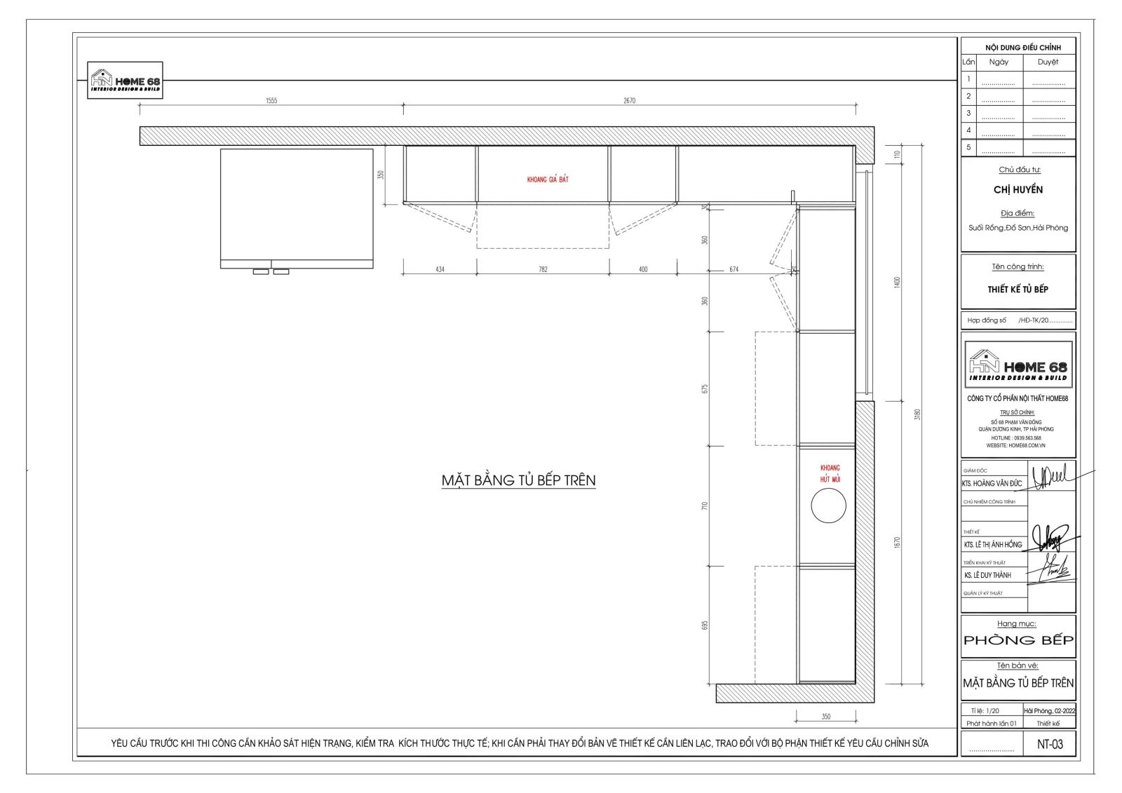
Với kiểu dáng chữ L kết hợp lối thiết kế tân cổ điển, qua bản vẽ 2D và 3D của chúng tôi bạn có thể nhận thấy sự mới mẻ, hòa quyện với nhau của tủ bếp bên trên và bên dưới. Đội ngũ HOME68 đã tạo rất nhiều các ngăn, hộc tủ để có thể lưu trữ đồ cần thiết và đồ ít dùng. Tạo sự gọn gàng ngăn nắp trong 1 không gian sống tiện nghi.
Tại các khoang tủ bếp nhựa PVC Picomat được thiết kế với các tính năng khác nhau mang lại sự tiện nghi trong quá trình sử dụng. Ở bề mặt các cánh tủ lắp đặt các núm tròn giúp cho quá trình đóng và mở trở nên nhẹ nhàng và thuận lợi hơn rất nhiều.

Mẫu tủ bếp tân cổ điển đẹp, thu hút tại Hải Phòng
Mẫu tủ bếp nhựa PVC Picomat nhà chị Huyền còn được lắp đặt các phụ kiện, thiết bị tủ bếp thông minh, hiện đại như là giá xoong nồi, giá úp bát, giá dao đĩa, giá gia vị, máy hút mùi, bếp từ, chậu vòi rửa,…. đảm bảo tủ bếp đầy đủ công năng trong suốt quá trình sử dụng.

HOME68 thiết kế, thi công tủ bếp nhựa PVC Picomat đẹp, thu hút Hải Phòng
Tủ lạnh được đặt cùng trong bộ tủ bếp giúp cho người nội trợ thuận tiện hơn trong quá trình nấu nướng. Kế cạnh tủ lạnh là khu vực chuẩn bị đồ có chậu rửa, giá úp bát, giá dao thớt đa năng. Còn phía bên kia thì được bố trí lắp đặt lò vi sóng, bếp từ cùng máy hút mùi âm tủ cao cáp, giá để xoong nôì, thùng gạo thông minh.
Tất cả đều được sắp xếp 1 cách khoa học, hợp lý và cực kỳ thông minh vừa đảm tính thẩm mỹ vừa mang đến công năng tiện nghi.

Mẫu tủ bếp nhựa Picomat tân cổ điển thanh lịch, tinh tế tại HOME68
>> Xem thêm: Tủ bếp cánh kính cường lực phủ nhũ nhà chú Hùng tại Phủ Thượng Đoạn, Hải Phòng
CÔNG TY CỔ PHẦN NỘI THẤT HOME 68
Công Ty Cổ Phần Nội Thất HOME 68 chuyên thiết kế, thi công nội thất, tủ bếp, xây nhà trọn gói. Chúng tôi cam kết chất lượng tốt nhất, giá tối ưu nhất

